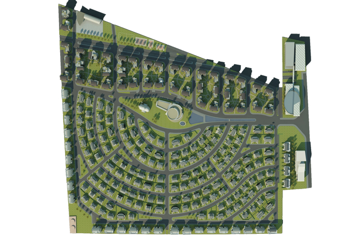
Residential Compound Crevedia, Romania 2008 LOCATION Crevedia, Romania CGI Credits ANRU RELATED PROJECTS IGF Book Binding Facilities Aldeno, Italy House in Falatados, Tinos Tinos, Greece Cove Residences – Ellinikon Athens, Greece 3 Summer Villas Kea, Greece